情報更新日:2026年03月26日/広告有効期限:2026年04月26日
表示閲覧回数(過去30日間):13
お急ぎの方はお電話からお気軽にどうぞ!
083-257-0246 営業時間 / 10:00〜18:00 定休日 / 毎週水曜日、第1・第3火曜日、土日以外の祝日
>物件詳細情報
| 基本情報 | |
|---|---|
| 物件番号 | 10007805324 |
| 店舗形態 | 事務所 |
| オススメ業種 | 事務所 |
| 物件名 | 太陽生命下関ビル |
| 物件の状態 | 空き |
| 引越し時期 | 即 |
| 契約形態と期間 |
普通契約期間:1年間 |
| 所在地・交通 | |
|---|---|
| 所在地 | 山口県下関市観音崎町-12-10 |
| 交 通1 | 山陽本線下関駅 徒歩19分 |
| 交 通2 | サンデン交通(株)三百目 徒歩2分 |
| 賃料 | |
|---|---|
| 賃 料 | 298,934円(税込) |
| 敷 金 |
12ヶ月 |
| 精算方法 | 実費 |
| その他 | |
|---|---|
| 備考 | |
| 建物 | |
|---|---|
| 建物構造 | 鉄筋コンクリート造 |
| 建物階建て |
地上5階 |
| 施工年月 | 1994(平成6)年 10月 |
| 募集物件の階数 | 地上 5階 501号室 |
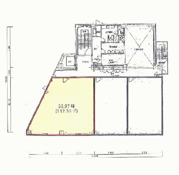
| 契約面積 | 112.30m2(33.97坪) |
| 用途地域 | 商業地域 |
| 設備 | |
|---|---|
| 水道 | 公営 |
| エレベータ | 有 |
| エアコン | 有 |
| トイレ | 有/共用 |
| 給湯室 | 有/共用 |
| キッチン | 有/共用 |
| 駐車場 | |
|---|---|
| 状 況 | 空有 |
| 駐車料金 | 21,600円(税込) |
| 空き台数 | 16台 |
| 敷 金 | 3ヶ月 |
| 取引情報 | |
|---|---|
| 取引態様 | 媒介 |
| 客付 | 不可 |
この物件をチェックした人はこんな物件も見ています
- ロードサイドのお手頃店舗

山口県下関市稗田町-5-10
49.59m2(15.00坪)
60,000円(税込)
- ロードサイドテナント!!人気の新下関エリア

山口県下関市一の宮町3-4-12
59.67m2(18.05坪)
165,000円(税込)
- 豊前田エリアの中心地

山口県下関市豊前田町2-2-4
59.63m2(18.04坪)
154,000円(税込)
- 下関市役所すぐ目の前の好立地

山口県下関市田中町-16-7
34.10m2(10.32坪)
40,000円(税込)
- 下関市役所目の前の好立地!!ロードサイドテナント!!

山口県下関市唐戸町-2-12
46.68m2(14.12坪)
143,000円(税込)
今日チェックした物件
お急ぎの方はお電話からお気軽にどうぞ!
083-257-0246 営業時間 / 10:00〜18:00 定休日 / 毎週水曜日、第1・第3火曜日、土日以外の祝日


083-257-0246



















083-257-0246